Attendees of Coverings tile and stone exhibition will view a new iteration to the eighth-annual Coverings Installation Design Showcase (IDS) with leading designers and contractors sharing their creative talent to install tile in tiny houses on the show floor. The live-action demonstration and exhibit will feature three tiny homes being installed with tile over the course of the show by master installers, incorporating material from industry-leading tile and stone manufacturers. Coverings returns to the Orange County Convention Center in Orlando from April 4-7, 2017.
“The Installation Design Showcase is continually praised by show attendees for exemplifying design trends and the importance of proper installation techniques—it is a huge draw for trade professionals,” said Alena Capra, Coverings’ industry ambassador and alumna designer of the IDS program. “One of the best aspects of this year’s Showcase is that the spaces will be actual houses, serving a purpose that will be appreciated well beyond the show dates.”
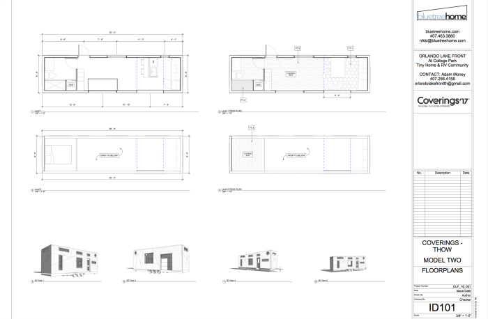
Adam Money, developer of Orlando Lakefront—the tiny homes community partnering with Coverings for the initiative—advised he plans to incorporate the spaces into a Lakefront Bed & Breakfast. The three houses will be enjoyed by guests for years to come.
“Tile is incredibly versatile, and we’re delighted to help promote the material as something that can cover the floor—and all four walls—of a residential space,” advised Money. “We think that even in a tiny home, Coverings attendees will see expansive opportunities for tile and stone.”

Design teams led by principles from The Georgia Pear Interiors, Kim Lewis Designs and bluetreehome will be paired with installers who hold Five Star Recognition from the National Tile Contractors Association and certification from the Ceramic Tile Education Foundation to bring each design to life. John Cox, president of Cox Tile and technical consultant for the Installation Design Showcase, has helped with the collaboration between designers and installers. Materials sponsored by Ceramics of Italy, Crossville, Florim USA, ARDEX, LATICRETE and Mapei will be used for the project.

The Installation Design Showcase spaces will be open for the duration of Coverings on the show floor; attendees are encouraged to visit and explore the homes. On Thursday, April 6 at 3 p.m., attendees will be invited to meet with the designers and contractors for a one-hour interactive session discussing the design and installation of each project.








